Our site uses cookies

Like most sites, our site uses cookies. We thought we would let you know as we are required to do so. If you would like more information please visit our privacy policy page we won't trouble you with this message again

logo

1259 London Road

Leigh-on-Sea

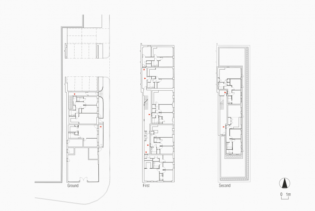
1259 London Road is an exciting warehouse conversion project providing 9no unique 1, 2 and 3-bedroom loft style apartments together with ground floor commercial space and parking, just a short walk from Leigh Station. The design retains the original warehouse character and feature brickwork combined with new standing seam metal cladding. A roof top extension creates 2no exclusive penthouse apartments and roof terraces offering estuary views.

Category: Mixed Use

Scale: 9no Apartments + Commercial [1,000 sq.ft] 

Client: Silver City Estates

Est Completion Date: 2020